Building a Wider Welcome
First Presbyterian Church of Asheville is committed to being a vibrant downtown congregation where we experience the boundary-breaking love of Christ through radical hospitality, deep relationships, and shared ministry.
Following a period of renewal and intergenerational growth since 2022, we are looking to the future with hope and confidence.
Building a Wider Welcome will help ensure FPCA remains a thriving downtown congregation for decades to come—extending an ever wider welcome and serving as a vital hub for ministry and mission in the heart of our community.

Priority #1: Sustainable Parking for Ministry Growth
Adding parking makes room, literally and spiritually, for the wider welcome God is calling us to extend.

Priority #2: Welcome & Hospitality Improvements
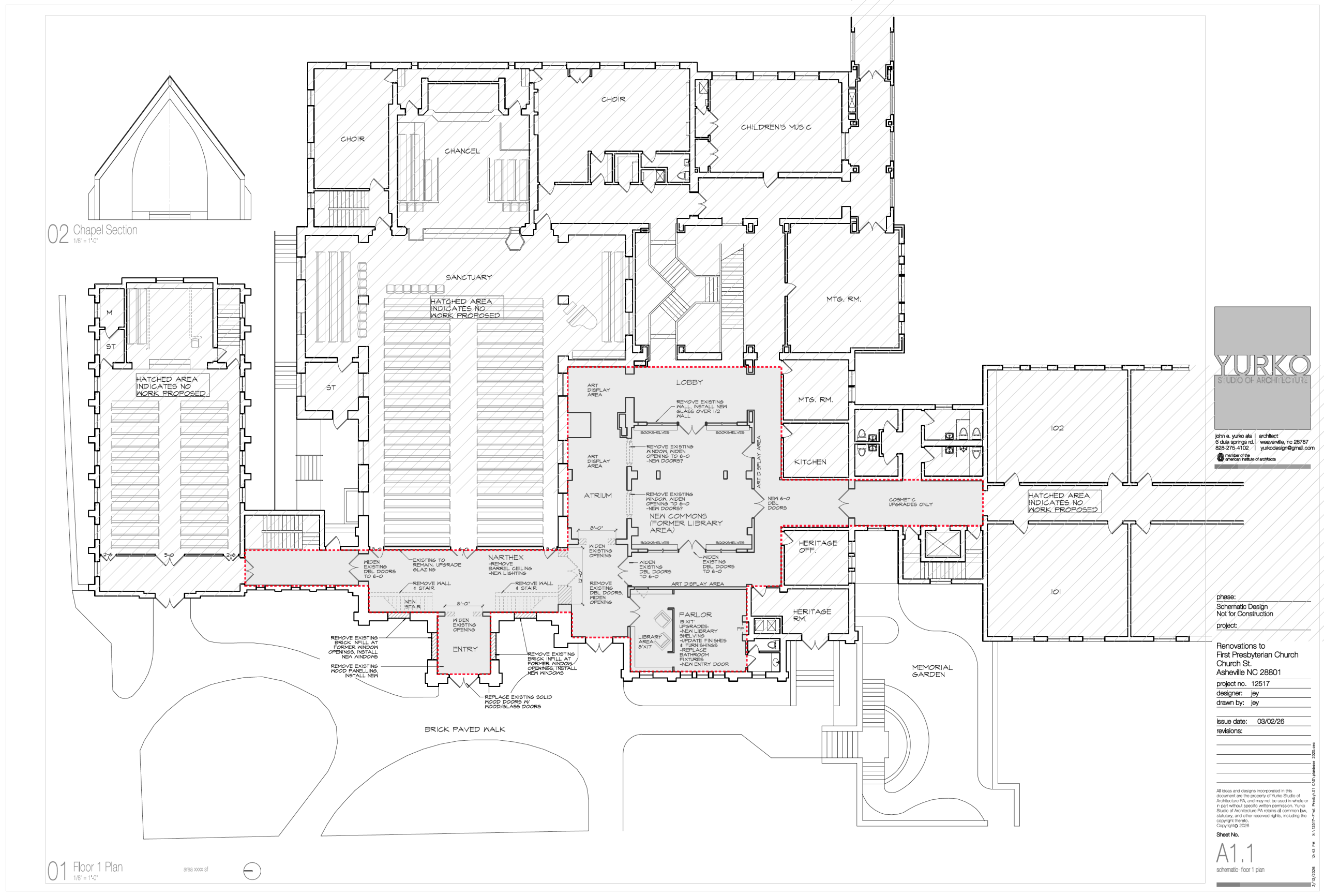
By creating spaces for connection—a Commons area, refreshed Fellowship Hall and Chapel, and improved signage and safety—we’re building the infrastructure of belonging.

Priority #3: Essential Facility Improvements
Those before us built generously; now it’s our turn to ensure this facility is ready for future ministry.
How to Give
- Commitments may be paid over a three-year period.
- Gifts by check, card, or bank transfer are welcome on the schedule that you outline in the Letter of Intent.
- If you are over 70 ½, Qualified Charitable Distributions from IRAs can count toward required minimum distributions without increasing taxable income under current rules.
- Gifts of appreciated securities may have additional strong tax savings while skipping capital gains tax on appreciation. Please contact your financial advisor to discuss. If you intend to make a stock transfer gift, contact Liz Thurston, Church Administrator, at (828) 253-1431.
- All gifts can be sent to:
First Presbyterian Church Asheville
Attn: Liz Thurston
Church Administrator
40 Church Street
Asheville, NC 28801
Learn More
Sustainable Parking for Ministry Growth
- In early 2026, the congregation voted to purchase 46 Aston St., a .64-acre property just minutes away from the front doors.
- The property includes 61 parking spaces and a 4,000-square-foot building.
- This purchase more than doubles available Sunday morning parking and offers weekday use for staff and families.
Welcome & Hospitality Improvements
- A new Commons area and narthex will transform the library and atrium into a vibrant hub for gathering and information-sharing.
- Improvements to wayfinding, landscaping, and lighting will enhance safety and accessibility.
- The Gardner Fellowship Hall will be renewed with updated bathrooms, flooring, furnishings, and A/V systems.
- The Education Building will gain improved restroom access for children and youth groups.
- Campbell Chapel will be refreshed with better lighting, music capacity, and flexibility while preserving its warmth and character.
Essential Facility Improvements
- Projects include installing an energy-efficient HVAC system, replacing the 25-year-old elevator, and installing new windows in the choir and Marguerite Morgan rooms.
- Reconnecting heat and replacing outdated thermostats will improve comfort and efficiency throughout the facility.
